Von 1946 an bis 1948 waren die Gesellschafter hauptsächlich damit beschäftigt, die drohende Enteignung abzuwenden. Heinrich (Günther war noch in französischer Kriegsgefangenschaft) hat sich da intensiv bemüht, zu retten was zu retten war.
Leider vergeblich.
Von Max hat man heute, wenn man die Akten liest, den Eindruck, er erfasst die Situation nicht, merkt nicht die aufkommende Katastrophe. Heinrich schreibt Briefe über Briefe, Max besorgt Geld und kauft neue Flächen bzw. bringt sein privates Immobilienvermögen in die Firma ein.
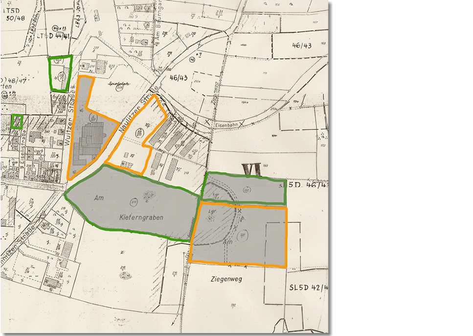
Rechte Grafik:
grau unterlegt = Fläche der OHG 1945,
grün = Eigentum der OHG 1945,
orange = Eigentum Max bzw. Neukauf, nach 1945 in
die Gesellschaft eingebracht
s. a. „DIE ENTEIGNUNG„.
Am 1. Juli 1948 sollte die 75-Jahr-Feier ausgerichtet werden. Es kann wohl davon ausgegangen werden, dass keinem zum Feiern zu Mute war.
Trotzdem schenkte Erich Dießner seinem Freund Max diese geschnitzte Lindenholz Wandtafel, die durch die Erbfolge in den Besitz des Autors gekommen ist.
Günther scheidet aus dem ehemaligen väterlichen Betrieb aus. Es war den alten Besitzern nicht mehr gestattet, im enteigneten Betrieb weiter zu arbeiten. Er scheidet am 8. Januar 1949, nur ein Jahr nach seiner Hochzeit mit Anneliese Dießner aus.
Der Treuhänder Huth hat ihm ein ordentliches Zeugnis ausgestellt.

